...The Ultimate Partner in Tree & Line Clearance. The Master Chipper Body with I-Box: Tough. Reliable. Essential.
Communities everywhere depend on the safe removal of dead or hazardous trees and the proper pruning of vegetation along public roads and utility corridors. These tasks are essential not only for protecting residents and infrastructure, but also for preserving the beauty and long‑term health of the urban environment.
The Master Chipper Body with I-Box is engineered to support these critical responsibilities with exceptional efficiency and reliability. Built for the demanding needs of landscape maintenance crews, professional tree‑removal teams, and utility line‑clearance specialists, it delivers the durability, capacity, and smart design required to keep neighborhoods safe, clean, and visually appealing.
By combining rugged construction with user‑focused features, the Master Chipper Body with I-Box empowers service crews to perform their work more productively and with greater confidence—helping communities stay protected while maintaining the natural landscapes people value.
- Manufactured in 12-ft., 14-ft and 16-ft Lengths
- Includes Rugby Dump Hoist
- Standard 65.5" ID H x 95.5"W (87.315" from Inner Ribs) Rear Opening
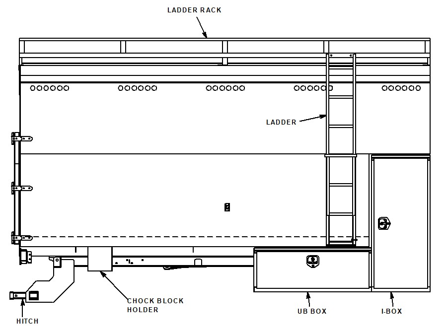
- I-Box behind cab can carry: Helmets, Chainsaws, Axes and Hand-Held Woodchippers. I-Box dimensions: 56”H x 24”W x 96”D
- Bedliner to Interior Walls to Protect Metal Surfaces from Corrosive Vegetation
- Inner Bed Storage Box Mounted Along Curbside Interior Wall in 12, 14 and 16-foot Lengths. When combined, the I-Box, Under-Bed (UB) Boxes and Inner Bed Box offer the ultimate storage solution!
- 60"L Under-Bed (UB) Box for 14-ft and 16-ft Master Chippers
- 36"L Under-Bed (UB) Box for 12-ft Master Chipper
- Roof-Mounted Chipper Body Racks for Long Ladders and other Storage (all Body Lengths)
- Ladder for Roof Rack Access
- Chock Block Holder
| Dimensions (length) | 12’ (144”), 14’ (168”), or 16’ (192″) |
| Body Walls | 14 GA EG Steel with 2×3 steel tubing frames |
| Deck | 10GA HR Steel |
| Crossmembers | 4” x 11 GA Channel Steel, 12” centers. |
| Fuel Fill | Integrated into frame rail |
| Rear Lighting | OEM chassis lights |
| Marker Lighting | Bullet design DOT Approved LED |
| Inner Walls and Floor | Completely covered with smooth spray-on bedliner |
| Hoist | Rugby SR-4016 (12’ and 14′ Chipper) 7.7-12 Ton Capacity SR-5020 (16’) 10.8-13 Ton Capacity |